Công trình lắp đặt khu lăng mộ đá gia đình anh Nguyễn Tiến Lực tại xã Cẩm Nhượng – Cẩm Xuyên – Hà Tĩnh tháng 5/2022
Anh Lực biết đến xưởng chế tác đá mỹ nghệ Huy Nam như 1 cái duyên, khi anh đang lướt Facebook thấy sản phẩm đá mỹ nghệ Huy Nam xuất hiện, nhìn sản phẩm lăng mộ đá ấn tượng , chất lượng tốt đã thu hút được ánh nhìn của anh. Qua nói chuyện tìm hiểu thấy Huy Nam là người gần gũi, am hiểu và chuyên môn tốt , là người có tâm trong nghề. Nên anh đã nhờ nghệ nhân trẻ Huy Nam tư vấn thiết kế cho khu anh một lăng mộ anh đang muốn làm để báo hiếu tổ tiên.
Hãy cùng Huy Nam xem công trình này được thiết kế tỉ mỉ và lắp ráp như thế nào ở nội dung dưới nhé.
Thiết kế khu Lăng mộ đá tại xã Cẩm Nhượng, huyện Cẩm Xuyên – Hà Tĩnh
Khuôn viên lăng mộ đá

Toàn cảnh mặt sau lăng mộ đá
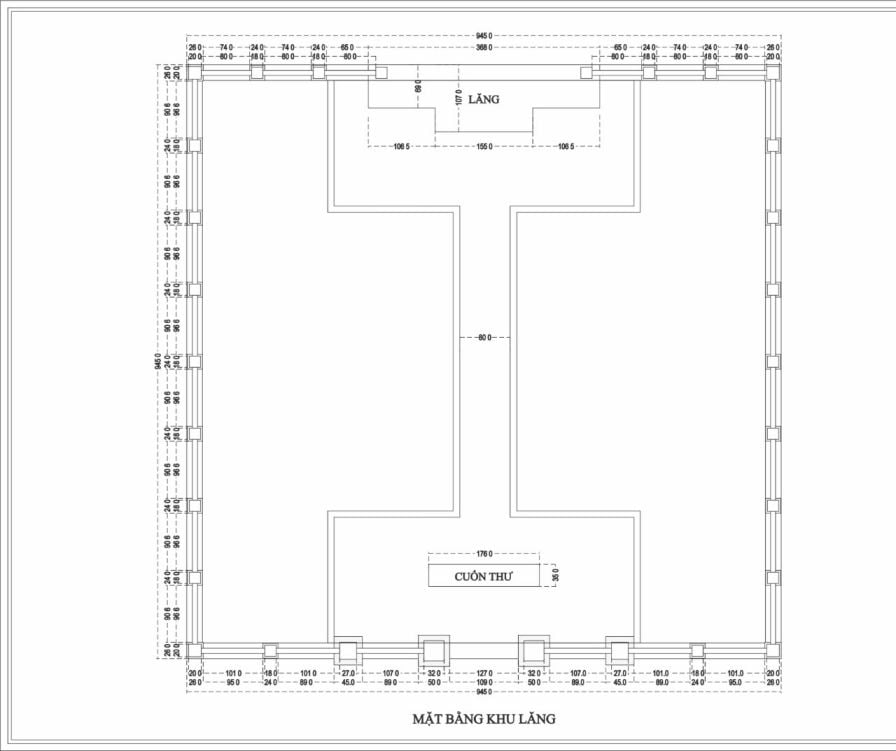
Công trình khu lăng mộ đá gia đình anh Lực khuôn viên với chiều rộng 9,45, chiều dài 9,45m ( 89m2). Toàn bộ được chế tác bằng chất liệu đá xanh đen tự nhiên loại 1, đá được Huy Nam tuyển chọn kỹ càng không bị om dập, rạn nứt đảm bảo cho công trình bền vững với thời gian.
Phần đế của khu Lăng Mộ Đá được nâng cao hơn so với cốt nền của toàn bộ công trình Lăng Mộ Đá. Phía trước lối ra vào là bậc thềm đá chạm lá lan bao gồm 3 bậc để lên xuống khu lăng mộ với ý nghĩa trong phong thủy để cuộc sống thuận lợi, may mắn, sức khỏe dồi dào .
Chính yếu tố đó đã làm khu lăng mộ đá thêm nổi bật hơn và trang nghiêm hơn. Nhìn từ ngoài vào trong, khu lăng mộ gia tộc anh Lực gồm các hạng mục:

– Cuốn thư đá dài 1750cm cao 350cm đặt trước cổng tứ trụ tạo thành 2 lối đi. Cuốn thư được chạm khắc giữa 1 đầu là thanh gươm và đầu còn lại là cây bút anh Lực muốn nhìn vào cuốn thư đá toát lên được sức mạnh, lòng dũng cảm, ý chí sắt đá, cần cù của ông bà tổ tiên. Trên đỉnh đầu cuốn thư là rồng chầu mặt nguyệt mang lại phong thủy tốt cho toàn bộ công trình nó toát lên vẻ uy nghiêm với gia tộc quyền thế văn võ song toàn mà không phải gia tộc nào cũng có được thiết kế như vậy.
Rồng là biểu tượng của sức mạnh vũ trụ mà cụ thể là hai lực tương tác Âm – Dương. Hình tượng hai con rồng là biểu tượng lực Âm – Dương cân bằng, hạt châu lại là biểu tượng của Thái cực, là biểu tượng của vũ trụ.

Cuốn thư đá khu lăng mộ

Cuốn thư đá đặt trước cổng tứ trụ tạo thành 2 lối đi
– Cổng đá: Bước vào là 3 bậc thềm đá nguyên khối mài nhẵn chạm lá lan tạo sự chắc khỏe cho công trình
Cổng vào lăng mộ là dạng cổng tứ trụ trên bốn đỉnh cột được đặt nụ sen và hai cột đá chạm hai câu đối : “Nơi cát địa tổ tiên an nghỉ – Chốn mộ phần con cháu viếng thăm” với ý nghĩa là con cháu tìm nơi đất trời dung hòa, phong thủy thịnh vượng để chôn cất, thờ kính tổ tiên. Để tổ tiên có thể phù hộ con cháu sung túc, hạnh phúc hơn.

Cổng lăng mộ đá
– Lan can đá: Bao quanh khu lăng mộ đá là các hạng mục lan can đá có chiều cao 90cm, chạm khắc họa tiết hoa Sen dây, kích thước cân đối với tổng thể khu mộ. Cột lan can có kích thước cột là 18cm, Cột góc là 20cm làm bằng cột đèn.

Lan can chạm khắc hoa sen dây

Toàn cảnh lan can đá khu lăng mộ
Lăng thờ đá 3 ngôi
Lăng mộ ba ngôi liền nhau là điểm nhấn của khu mộ với phần lăng thờ ở chính giữa 3 mái cao nhất. Hai bên là phần mộ đá hai mái, chiều dài 3.68m với lăng thờ giữa có kích thước 107cm x 155cm, kích thước 2 lăng bên là 106.5cm x 69cm. Với phần mái đá ba tầng cao ráo, cho thấy một ngôi mộ khang trang, đẹp mắt và uy nghi đồng thời phần mái đá còn giúp che chắn, bảo vệ cho mộ và bài vị được nguyên vẹn, tránh bị các tác động của thời tiết làm mờ, hư hỏng .Cột lăng phần bài vị sử dụng cột tròn chạm hoa văn đầu rồng nổi tinh xảo
Mặt trước cánh lăng chạm hai con hạc đang cưỡi rùa, mặt sau chạm cảnh đầm sen đẹp. Trên Bia lăng thờ có Khắc dòng chữ nổi ” HỌ NGUYỄN TIÊN”, phía trên cổ đảng khắc chữ 2022 nhằm đánh dấu năm làm Khu lăng mộ
Phân thân điêu khắc nhiều hoa văn nhất. Có nhiều mẫu hoa văn từ đơn giản đến phức tạp được khắc lên đây. Chẳng hạn như hoa văn rồng, chữ Thọ, hoa lá,…Việc chạm khắc này tạo nên điểm nhấn cuốn hút cho lăng mộ. Mỗi hoa văn cũng ẩn chứa trong đó những ý nghĩa khác nhau.

Mặt trước lăng mộ đá

Mặt sau lăng mộ đá
Một số hình ảnh khu mộ gia đình a Lực tại xã Cẩm Nhượng, huyện Cẩm Xuyên – Hà Tĩnh





Video chi tiết khu lăng mộ đá gia đình a Lực tại xã Cẩm Nhượng, huyện Cẩm Xuyên – Hà Tĩnh
Khi bàn giao khu lăng mộ cho gia đình anh, Anh lực có chia sẻ anh đã không đặt niềm tin sai chỗ, Anh rất tâm đắc với Huy Nam từ thiết kế đúng ý khách hàng đến điêu khắc không 1 lỗi nhỏ, lắp đặt nhanh chóng khi bàn giao lại công trình rất sạch sẽ đáng được nhận sự tin tưởng của khách hàng. Chúc Huy Nam phát triển thịnh vương hơn, Và đây cũng là tâm huyết của gia đình anh gửi gắn đến Huy Nam xây dựng một khu lăng mộ chỉnh chu, trang nghiêm dành cho dòng tộc của mình thể hiện lòng biết ơn thành kính nhất đối với tổ tiên.
Với Đá Mỹ Nghệ Huy Nam thì ” Sự Hài Lòng Của Quý Khách Chính Là Thành Công Của Chúng Tôi”
Quý khách có nhu cầu đặt làm lăng mộ đá đẹp này xin vui lòng liên hệ:
Công ty TNHH Đá mỹ nghệ Huy Nam
0985.372.030 – Nghệ nhân trẻ Huy Nam
Zalo:0985 372 030
Làng nghề đá mỹ nghệ Ninh Vân, Hoa Lư, Ninh Bình
namvanninhbinh1983@gmail.com

